Particular

Planeación y edificación de edificio de 4 niveles, en la planta baja se encuentra, el estacionamiento, cuarto de servicio, y dos locales comerciales cada uno con bodega y medio baño, del primer nivel al segundo se encuentran cuatro apartamentos de 100 m2 cada uno, por nivel, cada apartamento consta de sala, comedor, cocina, cuarto de servicio, baño, recamara, recamara principal con baño y terrazas. En el tercer nivel se encuentran cuatro apartamentos de 100 m2 cada uno, en cada apartamento cuenta con sala, comedor, cocina, cuarto de servicio, baño, recamara principal con baño y estudio con opción de convertir este en segunda recamara. Cuenta con palapas, asadores y w.c.

 

 

 

Especificaciones

Ubicación:


Fecha: 2020

Imagen56

AUTOPISTA AEROPUERTO LOS CABOS-SAN JOSE DEL CABO, MITIGACIÓN DE LAS ALCANTARILLAS

Mitigación de alcantarillas en la autopista Aeropuerto Los Cabos–San José...
Leer Más
Imagen87

HABILITACION DE TECHUMBRE EN PLANTA DE OXIDOS

Habilitación de techumbre en planta de óxidos, concebida como una...
Leer Más
WhatsApp-Image-2026-04-15-at-12.38.10-PM

REHABILITACION PLAZA FCO. VILLA SAN JUAN DEL RIO

Rehabilitación de plaza Fco. Villa en San Juan del Río,...
Leer Más
Imagen92

REPARACION DE PISOS EN TRUCK SHOP PEÑASQUITO

Reparación de pisos en Truck Shop Peñasquito, concebida como una...
Leer Más
Imagen32

REMODELACIÓN DE UNIDAD DEPORTIVA, SANTA CLARA DGO.

Remodelación de unidad deportiva en Santa Clara, Dgo., concebida como...
Leer Más
Imagen113

REMODELACION CADENA DE SUMINISTROS

Remodelación de oficinas para cadena de suministros, concebida como una...
Leer Más
WhatsApp-Image-2025-09-04-at-1.08.50-PM-4

REHABILITACION DE ALCANTARILLAS AUTOPISTA NOGALES SONORA

Rehabilitación de alcantarillas en la autopista Nogales, Sonora, concebida como...
Leer Más
Imagen61

PAVIMENTACION,RED DE AGUA POTABLE Y ALCANTARILLADO EN PRIV. BIRON

Construcción de pavimentación, red de agua potable y alcantarillado en...
Leer Más
WhatsApp-Image-2026-01-22-at-9.40.54-AM

LAGUNAS DE OXIDACION SUCHIL

Construcción de lagunas de oxidación en Súchil, concebidas como una...
Leer Más
Imagen12

LABORATORIOS EN ISNTITUTO TECNOLOGICO DE VICTORIA

Construcción de laboratorios en el Instituto Tecnológico de Victoria, concebidos...
Leer Más
FACHADA

REMODELACION DE IMSS ZACATECAS,ZAC.

Remodelación integral de edificio de 5 niveles en instalaciones del...
Leer Más

REMODELACION ALMACEN IMSS XALAPA

Remodelación de almacén en instalaciones del IMSS Xalapa, concebida como...
Leer Más
13

IMSS VERACRUZ REMODELACION DE AREAS INTERIORES

Remodelación de áreas interiores en instalaciones del IMSS Veracruz, concebida...
Leer Más
fff07bb6-6973-4ce2-8988-9bc980b82333

ESTACIÓN DE DISEL PEÑASQUITO

Construcción de estación de diésel en Peñasquito, concebida como una...
Leer Más
Imagen18

DOMO SAN MIGUEL EL ALTO SANTIAGO PAPASQUIARO

La construcción  San Miguel El Alto, Santiago Papasquiaro, concebido como...
Leer Más
WhatsApp-Image-2025-09-04-at-2.17.57-PM-scaled

DOMO ESCUELA PRIMARIA FCO. VILLA

Ejecución de domo en la Escuela Primaria Fco. Villa, concebido...
Leer Más
Imagen129

CASA CORTIJO RESIDENCIAL

Construcción de casa habitación en Cortijo Residencial, concebida como un...
Leer Más
Imagen34

VELARIAS Y PATIO ESTUDIANTIL COBAED LA FORESTAL

Construcción de velarias y patio estudiantil en COBAED La Forestal,...
Leer Más
FDZX8182

CONSTRUCCION DE OFICINAS/CONTENEDORES INDUSTRIALES PEÑASQUITO

Construcción de oficinas a base de contenedores industriales en Peñasquito,...
Leer Más
Imagen105

CONSTRUCCIÓN DE PIT TRUCK SHOP

Construcción de Pit Truck Shop concebido como un espacio industrial...
Leer Más
GG

CONSTRUCCION DE GLORIETA EN PLANTA DE SULFUROS NEW MONT PEÑASQUITO

Construcción de glorieta en la planta de sulfuros de Goldcorp...
Leer Más
Imagen25

CONSTRUCCION DE DOMO EMILIANO ZAPATA CUENCAME,DGO.

Construcción de domo en Emiliano Zapata, Cuencamé, Dgo., concebido como...
Leer Más

COBERTIZO CONTRA INCENDIO TAR PEMEX DGO.

Instalación de ductos contra incendios diseñada para garantizar la seguridad...
Leer Más
WhatsApp-Image-2026-04-15-at-9.18.46-AM

CENTRO DE JUSTICIA PARA NIÑOS,NIÑAS Y ADOLESCENTES DIF DURANGO

Ampliación del Centro de Justicia para Niñas, Niños y Adolescentes...
Leer Más
WhatsApp-Image-2025-09-08-at-2.29.43-PM-2

CANCHA PASTO SINTETICO SECUNDARIA NUMERO 53

Diseño y construcción de cancha de pasto sintético concebida como...
Leer Más
b78d6264-a5db-4b60-b320-08b272ebf85c

ALMACEN DE NUCLEOS PEÑASQUITO

Diseño y construcción de un almacén de núcleos mineros concebido...
Leer Más
IMG_4747

REMODELACION DE OFICINAS H. CONGRESO DEL ESTADO DURANGO

un concepto clásico con un toque de modernidad y un...
Leer Más
IMG_4262

UNIDAD MEDICA ITD (Instituto Tecnológico de Durango).

un espacio construido para cuidar la salud y calidad de...
Leer Más
WhatsApp-Image-2025-01-16-at-12.05.28-PM

PARQUE LINEAL-PUENTES GEMELOS.

Los avances en la obra de rehabilitación del parque lineal...
Leer Más

REMODELACIÓN CASA RM

El proyecto de remodelación en casa Villa de Guadalupe se...
Leer Más

FRACCIONAMIENTO DEL RIO.

El diseño del Fraccionamiento del Rio se centra en crear...
Leer Más
WhatsApp-Image-2026-01-21-at-2.01.53-PM-3

QUINTA MARIA REGINA

Quinta María Regina es un proyecto innovador que combina la...
Leer Más

CASA «SAUCEDA» (diseño)

"Casa sauceda es mas que un proyecto de construcción; es...
Leer Más
2-dia-gdeimpr-1-scaled

CASA AMARO (Diseño)

El proyecto de diseño de la "Casa Amaro es una...
Leer Más

Casa jardines

Remodelación de casa habitación con un estilo moderno y sobrio,...
Leer Más
WhatsApp-Image-2023-05-10-at-1.52.19-PM-7

TEATRO DEL PUEBLO SANTIAGO PAPASQUIARO.

Velaría y teatro al aire libre Santiago Papasquiaro Dgo.
Leer Más
WhatsApp-Image-2023-05-18-at-4.05.40-PM

Santuario Martires Duranguenses

  El área total del complejo es de 1023 M2,...
Leer Más

Grupo Jaguesa (Matriz)

Proyecto y Construcción de bodega y área de ventas para...
Leer Más

Pueblito Botanero (Bar)

Proyecto de edificación tipo industrial realizada a base de acero,...
Leer Más

CAPILLA NAVIOS

    Diseño y construcción de una capilla en la...
Leer Más

CASA LAURELES «CASA SMART»

Planeación y edificación de vivienda unifamiliar nivel residencial, de mas...
Leer Más

Tiendas Six

Remodelación integral en tiendas de la cadena “SIX” dentro de...
Leer Más

Oficinas Corporativas

Planeación y edificación de oficinas corporativas en la ciudad de...
Leer Más

Escuela primaria Gabriel García Márquez

Edificación de tres aulas didácticas (aislada mas dos adosadas), servicios...
Leer Más

Casa «Otinapa»

Planeación y edificación de vivienda unifamiliar de 213.30 m2 de...
Leer Más

Modernización de la ciudad deportiva del estado de Durango

Muros de piedra, acabado estucado, malla ciclónica y estructura metálica,...
Leer Más
Imagen7

ESTADIO DE BEISBOL FCO. VILLA

Intervención de obra civil y acabados en el área de...
Leer Más

Casa «El Roble»

Planeación y edificación de vivienda unifamiliar de, de 224.45 m2...
Leer Más

Casa «Calderón»

Planeación y edificación de vivienda unifamiliar de 293.30 m2, dentro...
Leer Más
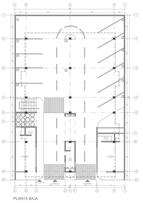
Imagen148

DEPARTAMENTOS J.R.

Planeación y edificación de edificio de 4 niveles, en la...
Leer Más

Casa «O» CUMBRES

Planeación y edificación de vivienda unifamiliar de 293 m2 distribuidos...
Leer Más

Casa Cumbres «JC»

Planeación y edificación de vivienda unifamiliar, en el fraccionamiento residencial...
Leer Más

Barrio de Analco

REMODELACION DE FACHADAS EN EL BARRIO DE ANALCO DE LA...
Leer Más