El diseño del Fraccionamiento del Rio se centra en crear un ambiente moderno con un toque industrial que se refleja tanto en el acceso como en la fachada principal. Se utilizarán materiales aparentes que resalten y enmarquen la zona del recinto, generando una estética visualmente atractiva. Este diseño busca elevar la experiencia visual de los residentes y visitantes,brindando una sensación de tranquilidad y modernidad al mismo tiempo.
el ambiente de tranquilidad como característica principal y distintiva del fraccionamiento,creando un entorno propicio para el hogar y la vida familiar. Se prestara especial atención a la seguridad, implementando medidas necesarias para garantizar la protección de los residentes y sus propiedades.
Además, se planificarán y desarrollarán diversas amenidades para satisfacer las necesidades de la comunidad residencial. Estas amenidades incluirán áreas recreativas, espacios verdes, zonas de entretenimiento y actividades para toda la familia.
en resumen, el diseño del fraccionamiento Del Rio se enfoca en ofrecer un ambiente moderno, seguro y tranquilo, donde los residentes puedan disfrutar de un estilo de vida cómodo y satisfactorio.
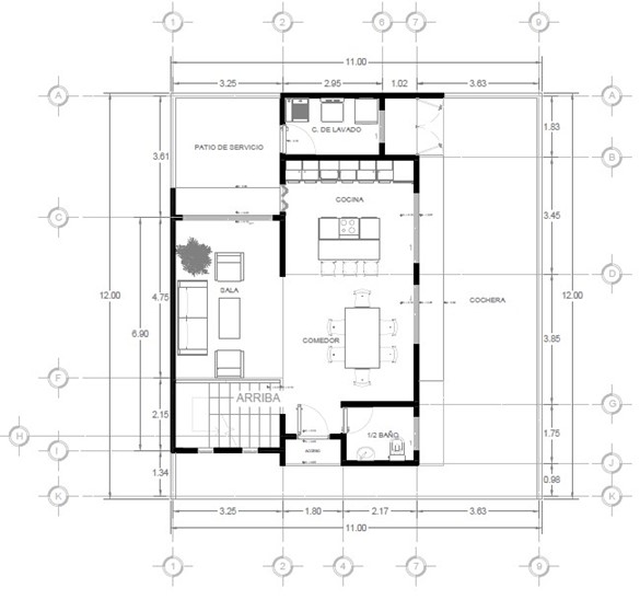
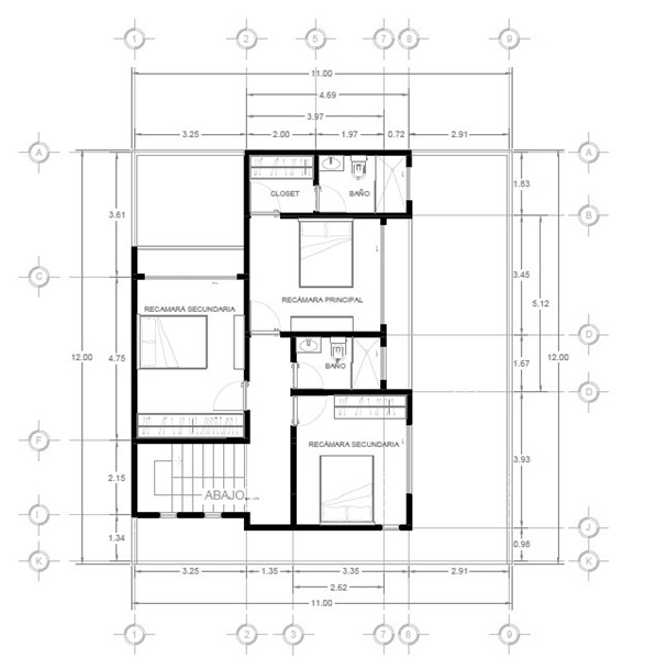
Especificaciones
Ubicación: Victoria de Durango.
Fecha: Marzo 2023